Skip to content
Fjordkanten Bjorøy
Hjem
Boligvelger
Prospekt
Meld interesse
Hjem
Boligvelger
Prospekt
Meld interesse
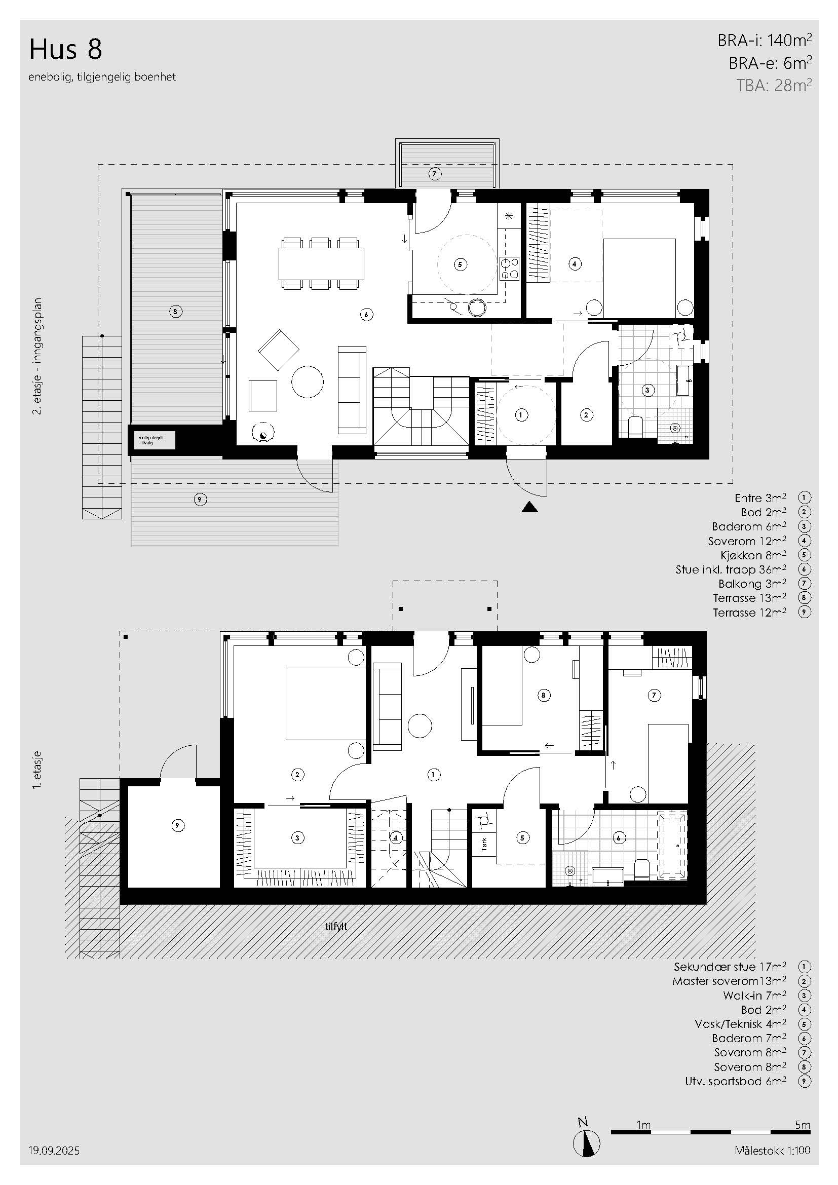
Hus 8
BRA-i
Internt bruksareal
140 m
2
TBA
Terrasse- og balkongareal
28 m
2
BRA-e
Eksternt areal
6 m
2
Soverom
stk
4
Pris
kr 8 600 000
Status
Ledig
Gi bud
Meld interesse