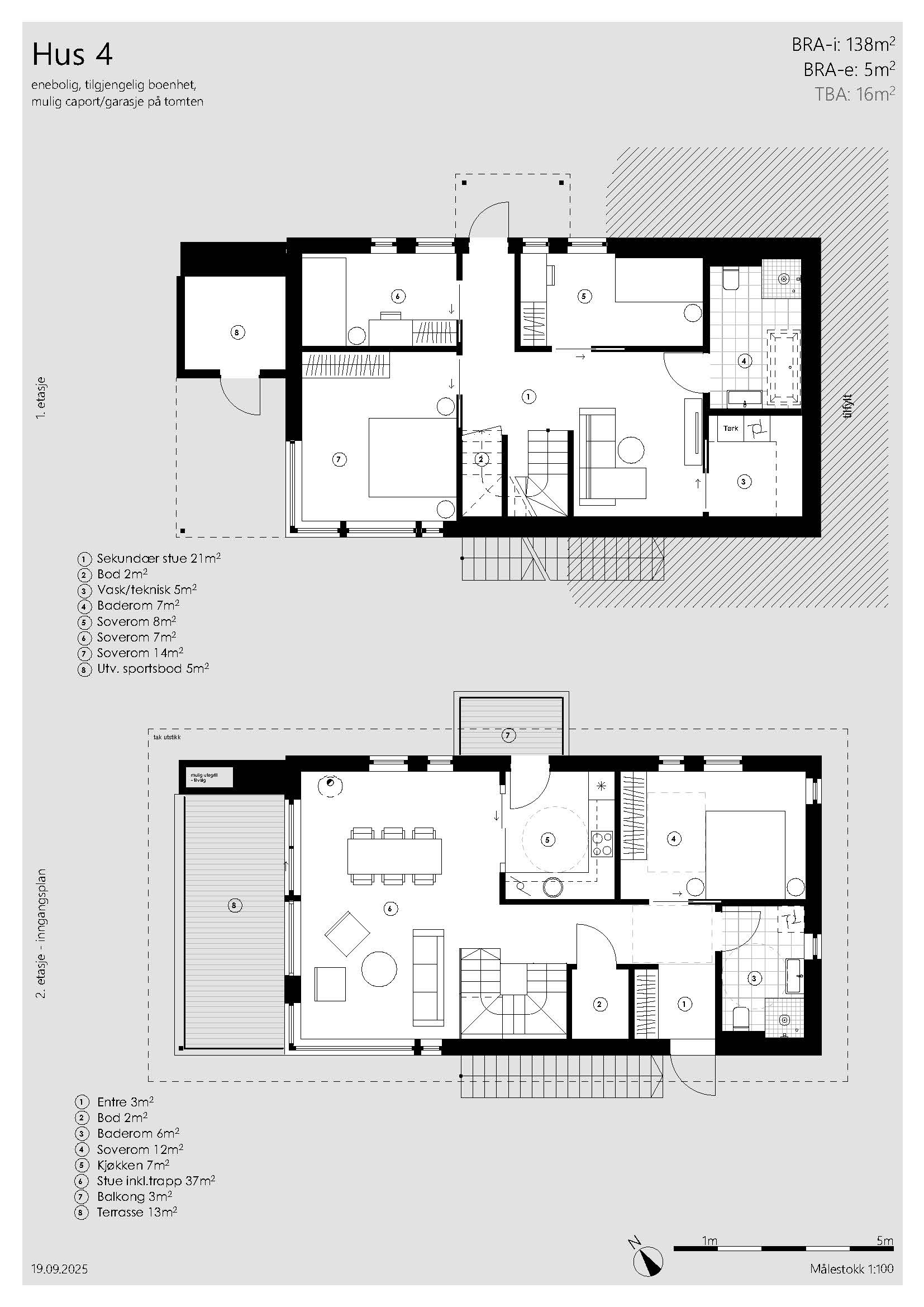
Hus 4

BRA-i

Internt bruksareal

138 m2

TBA

Terrasse- og balkongareal

16 m2

BRA-e

Eksternt areal

5 m2

Soverom

stk

4

Pris

kr 9 300 000

Status

Ledig